H o u s e m e t r i c e s

HouseMetric Floor Plan 2D

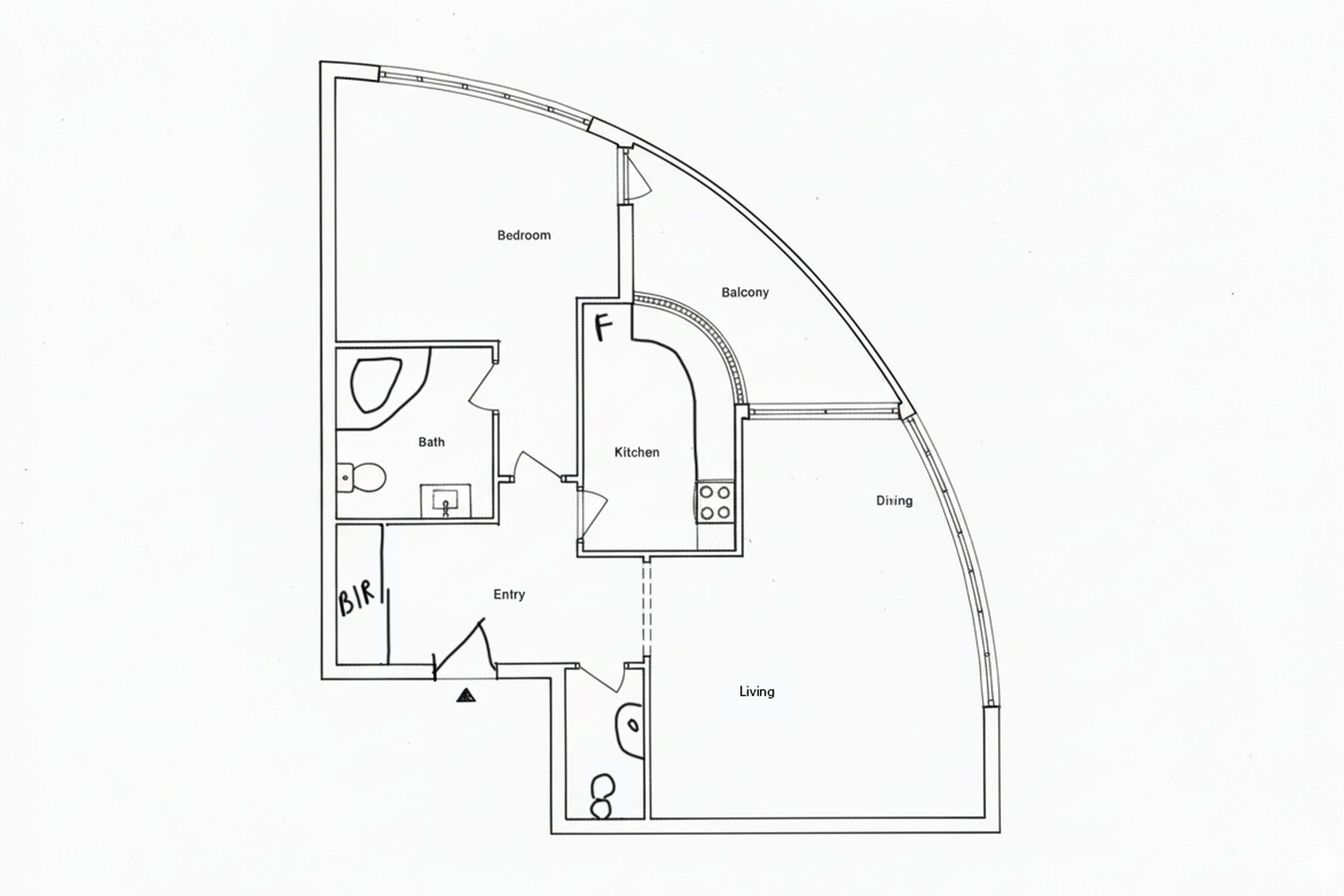
We provide accurate Floor Plan 2D to showcase your property layout clearly and professionally.

Before After
Before After
Before After
Before After

How the Project Works

A simple and efficient process to transform your property design ideas into reality.

Step 1: Scan or Sketch

Take a Scan or make a sketch of the room and determine the viewport(s)..

Step 2: Upload

Upload your Scan or sketch and select your preferred style.

Step 3: Processing

Our expert team will model your floor plan, produce high-quality renders, and deliver fast—within 1 working day.

Step 4: Ready to Use

Receive JPG, PDF, AI, FML and interactive URL versions for brochures, websites, and portals.

Frequently asked questions?

A simple sketch, a point cloud scan file, or an existing floor plan.

A standard floor plan will not take any longer than 24 hours.

We deliver high quality floor plan with a 100% check by our quality controllers. If we happen to make a mistake or interpret your instructions the wrong way we correct this quickly without any cost.

Yes! You can share your account with your specific template style, and we’ll follow it exactly for your project.

• Add your brand logo.
• Use your own brand colors.
• Include your personal disclaimer.
Have more questions?
Contact Us

Want to know more?

Any further questions? Feel free to fill in the form and we’ll get in touch with you.